Friday, 15 February 2019

Focus Group Facility New York

Focus Group Facility New York

Market Research & Focus Group Facility In New York City
FOCUS ROOM. Union Square Loft is a full-service creative research space and focus facility with flexible conference room capability in New York City’s Flatiron district. ... Get Content Here

Focus Group Facility New York

Focus Plus ~ Innovative Qualitative Center (800) 340-8846
Focus Plus is located at 462 Seventh Avenue New York, NY 10018 on the 18th floor. Focus Plus primarily recruits from the (212), (646), (718), (347) and (917) telephone area codes amoung others. View Area Codes ... Visit Document

Cedars-Sinai Medical Center - Wikipedia
Cedars-Sinai Medical Center is a non-profit, tertiary 958-bed hospital and multi-specialty academic health science center located in the Beverly Grove neighborhood of Los Angeles, California. Part of the Cedars-Sinai Health System, the hospital employs a staff of over 2,000 physicians and 10,000 employees. ... Read Article

Focus Group Facility New York Pictures

Focus Room—Facility
Designed to optimize qualitative research, our boutique facility features state-of-the-art technology, three modern suites, flexible layouts, comfortable and sleek furnishings, in-house caterers, walls of windows, and a full-service facilitation team. ... Doc Viewer

Photos of Focus Group Facility New York

Focus Pointe Global - Marketing Research Data Collection
Companies depend on Focus Pointe Global, the largest marketing research data collection company in the nation, to craft research that delivers results. ... Return Document

Focus Group Facility New York Images

Fieldwork - Marketing Research Services, Focus Groups ...
Focus Group moderators need a facility that meets all their needs, cutting-edge technology, and a carefully-selected group of participants. We know that, because we were founded by moderators. Our job is to make your market research successful, and we’ll do everything to make that happen. our company history ... Fetch Document

Focus Group Facility New York Images

Focus Group Facility In Upstate New York - Rmsresults.com
After a well-executed exploratory research focus group, research and strategic goals will be clearer. Here at Research & Marketing Strategies, we provide full services for focus group research. If you are interested in renting our focus group facility in Upstate New York or Central New York (Syracuse), contact Lauren Krell at (315)-635-9802. ... Return Doc

Focus Group Facility New York Pictures

Reckner Facilities | New York City Msa
New York's best-equipped and most-experienced market research facility, designed for focus groups, sensory research and product testing. Features sink booths and food/beverage booths, a test kitchen, focus group room and multi-purpose room. ... Get Content Here

Focus Group Facility New York Photos

New York | Paid Focus Groups
In a typical focus group, you’ll join with 6-8 people to give consumer feedback on appliances, skin care products, cars, televisions, just about anything. and are compensated for it. Plus, your opinions will have a real impact in the marketplace. Advanced Focus – The Facility 373 Park ... Fetch Here

Images of Focus Group Facility New York

Consumer Centers - Focus Group Facilities & Market Research ...
New York Consumer Center, 28 W. 44th Street, Suite 500, New York NY 10036 Meadowlands Consumer Center, 301 State Rt. 17N, Suite 503, Rutherford NJ 07070 ... Read Document

Focus Group Facility New York Photos

WAC Research | Focus Group Facilities In Fort Lauderdale And ...
As a leading marketing research company since 1972, WAC offers facilities for a variety of studies, including focus groups, taste tests, interviews, recruiting, and more! Our broad group of clients range from high tech, pharmaceutical, entertainment, as well as consumer products of all types. ... Get Doc

Pictures of Focus Group Facility New York


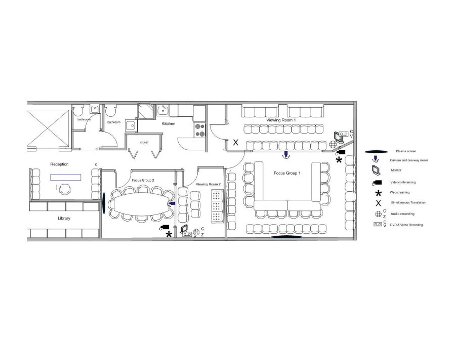
Fusion Focus: Interactive Floorplan. Conveniently located at 373 Park Ave. South in Manhattan’s Flatiron district, our RRU Research Facility has been specifically designed to meet the needs of you and your clients. Rollover the floorplan below to identify the location of rooms in our facility. ... Doc Viewer

JetBlue - Wikipedia
JetBlue Airways Corporation, stylized as jetBlue, is a major American airline low cost passenger carrier, and the sixth largest in the United States by passengers carried.JetBlue Airways is headquartered in the Long Island City neighborhood of the New York City borough of Queens, with its main base at John F. Kennedy International Airport. ... Read Article

Focus Group Facility New York Images

New York City - Focus Pointe Global
FPG - New York City. Answering All Your Qualitative and Quantitative Marketing Research Needs As a leader in the marketing research industry, Focus Pointe Global offers a comprehensive array of quantitative and qualitative research data collection solutions. ... View This Document

Resource Conservation And Recovery Act - Wikipedia
Resource Conservation and Recovery Act; Other short titles: Resource Conservation and Recovery Act of 1976: Long title: An Act to provide technical and financial assistance for the development of management plans and facilities for the recovery of energy and other resources from discarded materials and for the safe disposal of discarded materials, and to regulate the management of hazardous waste. ... Read Article

Focus Group Facility New York Pictures

Participant Fatigue | Focus Group Facility In Rochester NY ...
Quali Sight also offers easy access to the New York State Thruway and Interstate 81, and New York City. Our facility, located adjacent to Research & Marketing Strategies (RMS), has a focus group room and a newly remodeled client viewing area and client lounge. ... Return Document

Focus Group Facility New York

New York Focus Group Facilities:Market Research Companies ...
Find New York focus group facilities fieldwork companies, and market research firms and technology providers in New York City, Buffalo Elmsford & Long Island NY. ... Access Full Source

Focus Group Facility New York Images

TCS And Cornell Tech Launch Pace Port Innovation Hub In NYC
Mumbai, India-based IT services firm Tata Consultancy Services (TCS) has opened "TCS Pace Port New York," a new innovation hub in partnership with the Cornell Tech graduate school. The new hub ... Read News

Focus Group Facility New York

Unique Classrooms For Rent | New York, NY | Peerspace
Easily rent a classroom in New York, NY. Access a collection of unique, undiscovered locations and make your meeting a meaningful one. ... Read Document

Images of Focus Group Facility New York

"The Look In One Father's Eyes Broke Me": Lawmakers Describe Gut-wrenching Visit To Migrant Detention Centers
A group of U.S. Congressmembers who visited migrant detention centers in Clint and El Paso, Texas, on Monday, including New York Rep. Alexandria Ocasio-Cortez and 2020 Democratic contender Senator ... Read News

Focus Group Facility New York Images

Facilities Manager Jobs, Employment In New York, NY - Indeed
362 Facilities Manager jobs available in New York, NY on Indeed.com. Apply to Facilities Manager, Director of Facilities, Building Maintenance and more! ... Access This Document

Focus Group Facility New York Pictures

Focus Group Facility Syracuse | Upstate New York | Drive Research
Learn more about the Drive Research focus group facility in Syracuse, NY available for clients. Our qualitative facility includes a large focus group room and client viewing room for your market research needs. A convenient and top-notch setting for your focus groups, interviews, and other projects. ... Fetch This Document

Photos of Focus Group Facility New York

Focus Pointe Global - New York - Quirks.com
Free Directory of 7,000 Market Research Companies, 990 Focus Group Facilities, 5,000 Market Research Articles, Market Research Jobs, Events, Online Research +more ... Retrieve Here

Exopolitical Archive - YouTube
Exopolitical Archive; Mark Knoller asks White House Press Secretary Josh Earnest if he had seen the recent New York Times Story on Hillary Clinton promising to get to the bottom of the UFO and ... View Video

1 comment: